方案分享:80人职工食堂厨房设备系统方案(配有效果图)
对于很多初次接触餐厅及食堂建设的业主方来说,针对新建的餐厅或食堂确认需求制定设备采购计划相对容易,但是根据硬件情况制定出合理的厨房整体解决方案确比较困难,建议餐厅或食堂业主在选择厨房设备公司时多对比报价和设计方案,寻求出最合理而实用的厨房整体解决方案。
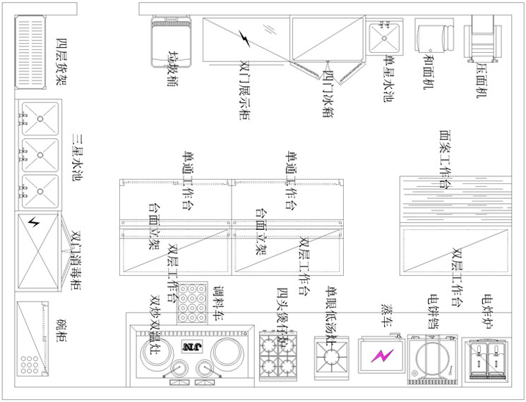
现在大明厨具跟大家分享一个80人左右的职工食堂厨房设备配置方案;希望对那些有需求的业主有所参考!

职工食堂厨房设计图



建设一个好用的餐厅或食堂,建设前要首先明确以下几个方面:
1、确认自己的需求。根据实际情况,确认自己的需求情况,如菜品如何定位(中、高、低档)?就餐人数有多少?菜品结构的选择(中、西餐,菜系)?什么样的 就餐形式(点餐或自助)等等。根据实际需求,就可以配备相应的厨房设备及餐饮用具,高效、精准的制定采购计划,避免资金的浪费。
2、仔细研究现有餐厅或食堂的硬件状况,如厨房所在楼层结构、高度、排烟管道、下水管线、楼层的核载、排送风路由、结构对功能间的影响等等。了解这些情 况,根据实际状况制定厨房整体解决方案,既保证了餐厅或食堂的正常运转,又符合国家在油烟排放、噪音治理、卫生防疫等方面的经营标准。
3、寻找有资质、有经验的厨房设备公司就是第三步了。向厨房设备公司提供详细准确的建筑结构平面图及设备配置需求等资料,提出安装施工及时间进度要求,有效地监督施工过程,确保施工质量。
下一篇:酒店厨房设备之烤箱使用注意事项上一篇:土豆脱皮机工作原理介绍
最新产品
同类文章排行
- 喷射式洗碗机的工作原理
- 影响商用洗碗机清洁能力的四大要素
- 高频静电油烟净化器有哪些特点
- 连锁商用厨房工程设计时需要注意哪些问题
- 餐饮店厨房设备
- 餐饮店厨房设备
- 商用厨房工程中排水设计的小细节
- 节能商用厨房工程的设计思路
- 陕西大明<201燃气煲仔炉>系列
- 陕西大明<201燃气矮汤炉>系列
ATY(中国)一站式服务官网文章
您的浏览历史







大明厨具官方微信
大明厨具官方微博